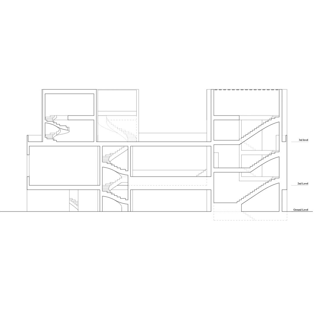
Jump Cut

    Loose Loops

    Core I: Project
    Instructor: Elle Gerdeman
    Fall 2019, GSD